“Thank you Jonathan and the whole team at Napier Watt for marketing and executing the sale of Buckingham Mews so brilliantly.”
Property details
A Rare Opportunity on One of Brondesbury Park’s Premier Roads
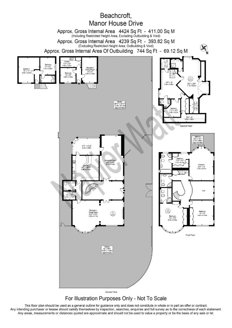
Occupying a commanding corner plot on the prestigious Manor House Drive, this substantial double-fronted detached residence extends to over 4,424 sq.ft and presents an exceptional opportunity to reimagine a family home of distinction. With generous proportions, abundant natural light, and scope for extension (STPP), the property is ideal for buyers looking to create a bespoke living space in a highly desirable location.
Currently arranged as seven bedrooms, three reception rooms, a kitchen, and several bathrooms, the house offers versatility and space in abundance. A notable feature is the detached outbuilding, formerly a garage, now configured as staff accommodation, adding further flexibility to the layout.
Set moments from the green expanses of Queen’s Park, the property benefits from excellent transport connections via Brondesbury Park (Overground), Kilburn and Willesden Green (Jubilee Line), and Queen’s Park (Bakerloo Line), ensuring swift access across London.
Whether modernising or extending, this is a rare chance to secure a significant home in a coveted neighbourhood.
Council Tax Brent Band H
Key features


Featured Sales
View all salesFind out how much your property is worth today by booking a valuation with one of our expert team and see where it takes you. You could be pleasantly surprised.





























