“Thank you Jonathan and the whole team at Napier Watt for marketing and executing the sale of Buckingham Mews so brilliantly.”
River Views - King Henrys Reach, Manbre Road, London W6
Property details
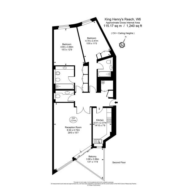
CURRENTLY BEING DECORATED – A spacious, light, and airy two double bedroom (with two en-suite bathrooms) flat based in the gated development of King Henry’s Reach. This second floor apartment (with lift) of approximately 1,240sq ft / 115sq m comprises a master bedroom with en-suite, second bedroom with en-suite, kitchen and bright living room leading onto a fantastic south-western facing terrace with uninterrupted views over the Thames. This private, secure and peaceful portered building is ideally located along the river whilst being walking distance from all the amenities and transport links of Hammersmith. The apartment also benefits from secure allocated parking.
2 Bedrooms : 2 En-suite Bathrooms : Guest WC : Balcony : 24 Hour Concierge : Underground Parking : EPC Rating D : Hammersmith & Fulham Council Tax Band G
NB – Photos for illustration purposes only, furniture may vary.
Key features
Featured Lettings
Find out how much your property is worth today by booking a valuation with one of our expert team and see where it takes you. You could be pleasantly surprised.



















