“Thank you Jonathan and the whole team at Napier Watt for marketing and executing the sale of Buckingham Mews so brilliantly.”
Hepworth Court, Gatliff Road, Grosvenor Waterside SW1W
Property details
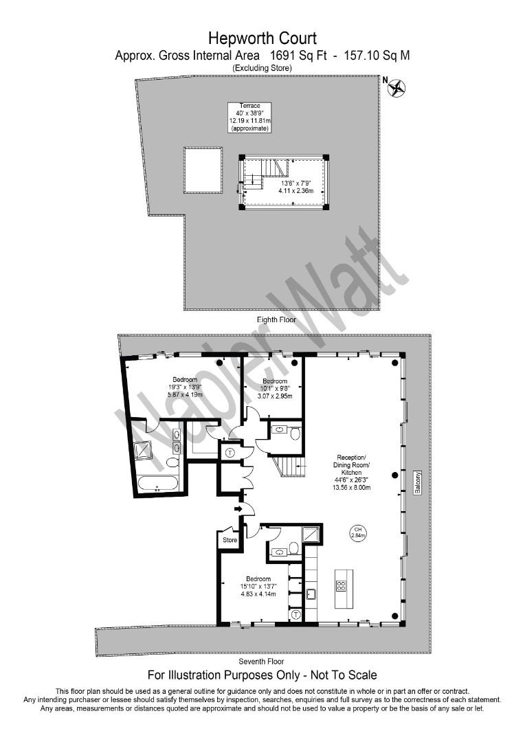
A bright and spacious 3 double bedroom duplex penthouse apartment of approx. 1.691sq.ft (157 sq.m) arranged over the 7th & 8th floors of Hepworth Court, Grosvenor Waterside, a popular residential development surrounding the former Grosvenor dock by Chelsea Bridge.
There is a feature staircase leading you to a huge private terrace of approx. 1240sq.ft (115.2sq.m) which is perfect for entertaining and which enjoys far reaching panoramic views including the River Thames and Battersea Power Station. This apartment has a fabulous triple aspect open plan reception and dining room with full width floor to ceiling windows and access to a wrap around terrace. There is a smart kitchen with a breakfast bar and Miele integrated appliances, 3 luxury bathrooms (2 en-suite), comfort cooling, wood flooring, secure underground parking and good storage including a utility cupboard housing a washer dryer, fitted wardrobes to bedroom 2 and a walk in wardrobe to the master bedroom.
The development provides 24 hour concierge service, leisure suite with a well-equipped gym with spa facilities. You will also be within very easy reach of Sloane Square and the excellent transport links of Victoria including the Gatwick Express service are close by.
Ground Rent : £1,947 pa rising
Service Charge : £6913 INC reserve fund per half year
Council Tax : G Westminster
Key features

Featured Sales
View all salesFind out how much your property is worth today by booking a valuation with one of our expert team and see where it takes you. You could be pleasantly surprised.






























