“Thank you Jonathan and the whole team at Napier Watt for marketing and executing the sale of Buckingham Mews so brilliantly.”
Property details
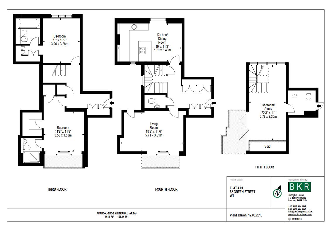
This magnificent Manhattan loft style, north east facing, two bedroom apartment is situated within a prime and exclusive address in Mayfair. This fabulous apartment is set over 1,680 sq ft and arranged over three floors of entertaining and living space. The apartment comprises; Third floor Two double bedrooms with a dressing room area both benefiting from en suite bathrooms. The master bedroom benefits from a private terrace. Fourth floor: A spacious modern fitted kitchen/diner with Gatineau appliances, guest cloakroom, spacious reception room with a private terrace. Fifth floor: This sky light mezzanine level can be used as an office or guest bedroom with an en-suite bathroom. There is access via Bi fold doors onto a private roof terrace with stunning views over central London. The contemporary style is spectacular: featuring glass panelling in the hallway and a modern open staircase with contemporary glass balustrade which allows for an abundance of natural light to enter the apartment. Further benefits include an internal lift service to each floor of the apartment, a storage cupboard located in the lower ground floor of the building. The apartment is extremely safe with 24 hour CCTV.
Green Street is located in the heart of Mayfair, close to local amenities such as shops, restaurants and transport links.
*All viewings under current government guidelines. Remote live video viewings by appointment and virtual tours available*
Key features

Featured Lettings
Find out how much your property is worth today by booking a valuation with one of our expert team and see where it takes you. You could be pleasantly surprised.



























