“Thank you Jonathan and the whole team at Napier Watt for marketing and executing the sale of Buckingham Mews so brilliantly.”
Property details
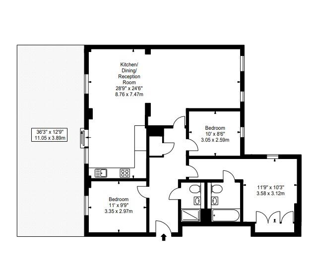
This large three bedroom apartment has spacious living and entertaining space with a beautiful reception room, offering breath-taking views over London and the Paddington Basin. It also comprises a striking modern open plan kitchen, three spacious bedrooms, two luxurious bathrooms and ample storage space. This prestigious building set off Paddington Basin features a concierge, lift service, CCTV and secure underground parking. Residential Land also offer exclusive deals and discounts in local restaurants and gyms specifically to 4B Merchant square tenants. Please contact the building manager for more information. The apartment offers easy access to superb transport links such as Paddington Train Station (Bakerloo, Hammersmith & City, Circle, District lines and Heathrow) Edgware Road (Circle, District and Bakerloo lines).
Available, furnished.
3 Bedrooms : 2 Bathrooms : Porter : Lift : EPC Rating B : Westminster Council Tax Band H
Key features


Featured Lettings
Find out how much your property is worth today by booking a valuation with one of our expert team and see where it takes you. You could be pleasantly surprised.































