“Thank you Jonathan and the whole team at Napier Watt for marketing and executing the sale of Buckingham Mews so brilliantly.”
Property details
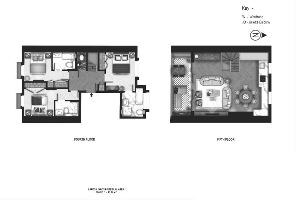
One of only two penthouses, Apartment 12a is an opulent 1,181 sq ft 3 bedroom duplex apartment positioned on the top floors with views over Hyde Park. Natural light floods the main reception and dining and kitchen area with a built-in bar with an ice maker wine chiller, working fireplace and full-height doors lead out onto the furnished terrace with an outdoor fireplace and outside TV
A central staircase leads down to the 3 en-suite bedrooms all of which come with a range of built-in wardrobes, a full marble ensuite bathroom with underfloor heating, and mirror-fronted cabinet units with integrated demister.
On-street parking available via paid permit.
EPC rating: C
Council Tax band: G
Key features


Featured Lettings
Find out how much your property is worth today by booking a valuation with one of our expert team and see where it takes you. You could be pleasantly surprised.






















