“Thank you Jonathan and the whole team at Napier Watt for marketing and executing the sale of Buckingham Mews so brilliantly.”
Property details
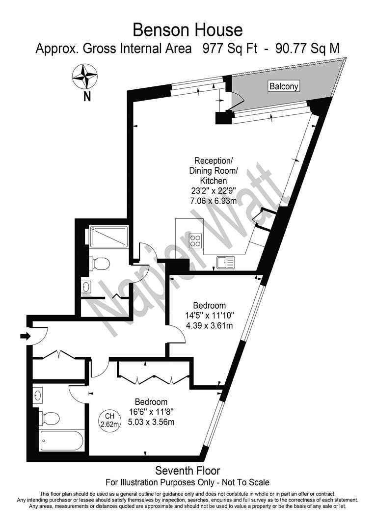
This bright and spacious flat is on the seventh floor and comprises of two double bedrooms (one en-suite), two bathrooms, large open plan kitchen and living room with floor to ceiling windows leading to a private south facing balcony.
Other benefits include : 24 hours concierge, swimming pool, gym, cinema room, steam room and sauna, cinema room and a business centre.
Entrance Hall, Light Airy Reception Room, Open Plan Kitchen, 2 Double Bedrooms, Ensuite Bathroom , Shower Room, Balcony, Parking, Comfort Cooling, Lifts, Concierge, EPC : B
Service Charge : £13,000 PA
Ground Rent: £970 pa
Council Tax : Kensington and Chelsea Band G
Key features


Featured Sales
View all salesFind out how much your property is worth today by booking a valuation with one of our expert team and see where it takes you. You could be pleasantly surprised.



























