“Thank you Jonathan and the whole team at Napier Watt for marketing and executing the sale of Buckingham Mews so brilliantly.”
Dolphin House, Lensbury Avenue, Imperial Wharf, SW6
Property details
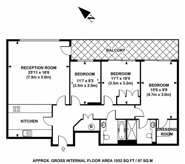
A spacious and well laid out, three bedroom, two bathroom apartment, located in the popular, modern development of Imperial Wharf. The apartment offers a good sized open plan reception room with private balcony overlooking the gardens and the River Thames. Imperial Wharf is located on the Chelsea and Fulham boarder moments from the shops, bars and restaurants on New Kings Road. The Thames Clipper is available on your doorstep, as is Imperial Wharf overground railway which is one stop from the underground.
EPC Rating C. Hammersmith and Fulham council tax band G.
Key features
Featured Lettings
Find out how much your property is worth today by booking a valuation with one of our expert team and see where it takes you. You could be pleasantly surprised.























