“Thank you Jonathan and the whole team at Napier Watt for marketing and executing the sale of Buckingham Mews so brilliantly.”
Property details
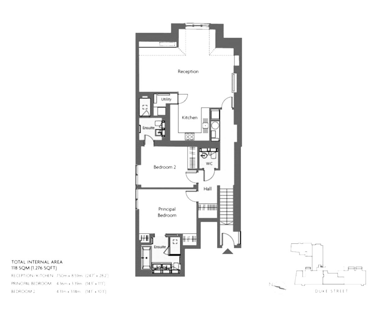
Situated over the third floor of this attractive refurbished period building ideally located within walking distances of Hyde Park, shopping facilities and transport links, the apartment features the latest in technology, bespoke interior design and has a balcony. Mayfair is London’s most fashionable destination. With London’s finest buildings, largest concentration of luxury hotels, best restaurants, bars, shopping, open spaces and hidden treasures all nestled together in a beautiful village setting. Westminster Council Tax Band H. EPC Rating C.
Key features


Featured Lettings
Find out how much your property is worth today by booking a valuation with one of our expert team and see where it takes you. You could be pleasantly surprised.






















