“Thank you Jonathan and the whole team at Napier Watt for marketing and executing the sale of Buckingham Mews so brilliantly.”
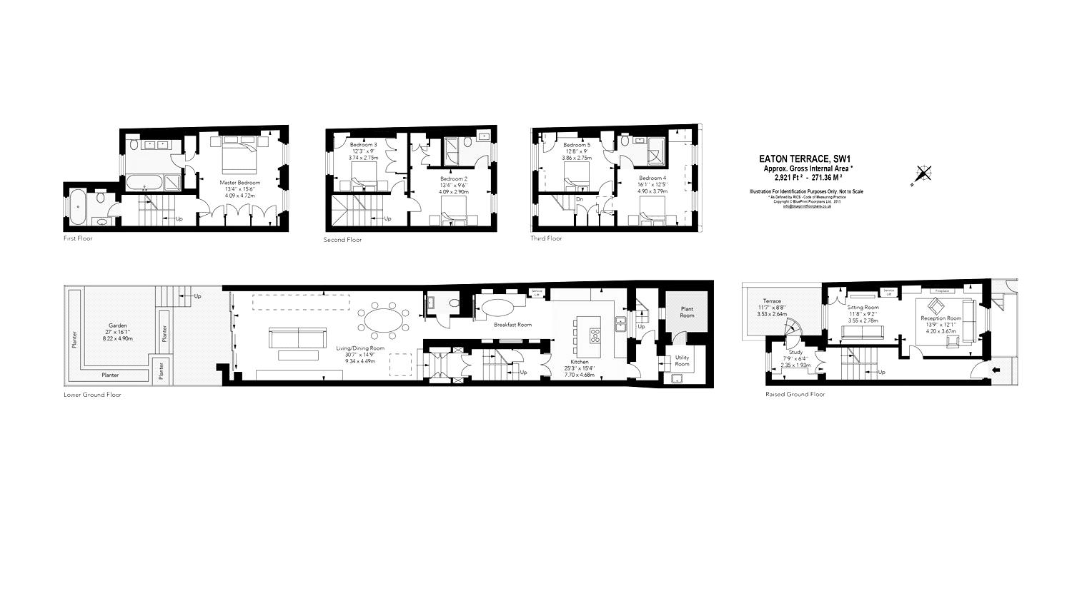
5 Bedrooms
4 Bathrooms
3 Receptions
2921 ft² (271 m²)
Property details
A superb five bedroom Grade II listed house with a large 30 ft family living-room and an attractive 27 ft garden and first floor terrace.
EPC Rating D.
Key features
- FREEHOLD
- GARDEN
- TERRACE
- STUDY
- UTILITY ROOM
- OUTSTANDING LOCATION
- IMMACULATE CONDITION
Ready to view this property?
Call us today on +44 (0)20 7935 0011
or use this form to request a viewing.

“Gain comprehensive insights into the local area, covering amenities, schools, price trends, and even broadband speeds, to make informed decisions about this property.”
Stamp Duty Calculator
What level of Stamp Duty should you be paying? Use our Stamp Duty calculator tool to calculate the stamp duty charged on purchases of property in the UK.

Featured Sales
View all salesGetting ready to move?
Find out how much your property is worth today by booking a valuation with one of our expert team and see where it takes you. You could be pleasantly surprised.
Call us today on +44 (0)20 7935 0011
Book a valuationSome kind words from our clients…
















