“Thank you Jonathan and the whole team at Napier Watt for marketing and executing the sale of Buckingham Mews so brilliantly.”
Property details
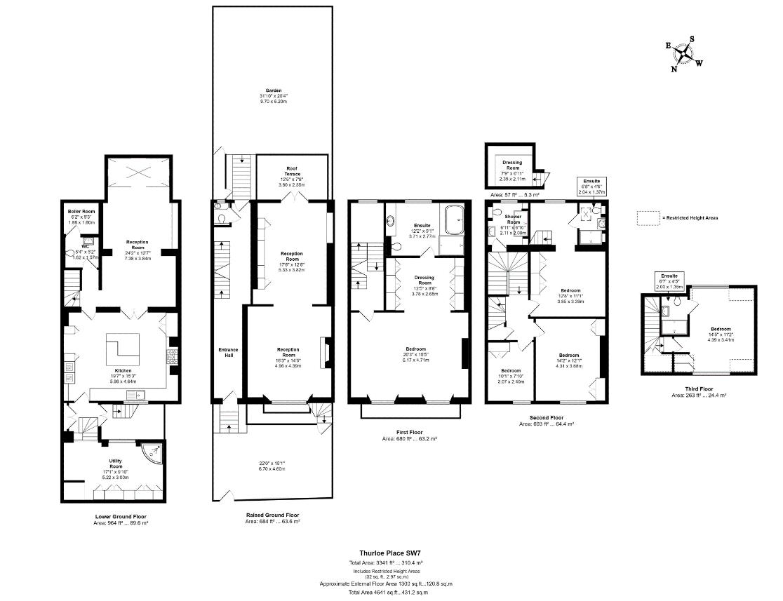
Newly refurbished Grade II listed town house with a south-facing garden and located in a prime Knightsbridge location Thurloe Place has been newly refurbished and extended, creating a fabulous family home arranged over five floors. The ground floor comprises a double aspect reception room opening onto the rear terrace and spacious south-facing garden. Downstairs, the informal reception room is flooded with natural light from the skylight. This leads through to a dining room and well-equipped modern kitchen offering ample space for entertaining and family living. The principal bedroom complete with dressing room and en suite bathroom occupies the whole first floor. There are a further four bedrooms, two with their own en suite bathroom and the other two sharing a bathroom. Thurloe Place is found opposite The Victoria & Albert Museum in the heart of Knightsbridge. The world renowned boutiques and restaurants of the King’s Road and Sloane Square are found within a mile, along with the well-connected tube stations in South Kensington, Sloane Square and Knightsbridge. The house is perfectly located to take advantage of London’s finest historic gardens, with Hyde Park just 0.7 miles to the south, and Battersea Park 1.2 miles to the north.
5 Bedrooms : 2 Shower Rooms : En Suite Bathroom : 2 En Suite Shower Rooms : Separate WC : Guest WC : 2 Reception Rooms : Kitchen : Garden : Terrace : 2 Balconies : EPC Rating D
Key features



Featured Sales
View all salesFind out how much your property is worth today by booking a valuation with one of our expert team and see where it takes you. You could be pleasantly surprised.


















