“Thank you Jonathan and the whole team at Napier Watt for marketing and executing the sale of Buckingham Mews so brilliantly.”
Portman Square, Marylebone
Property details
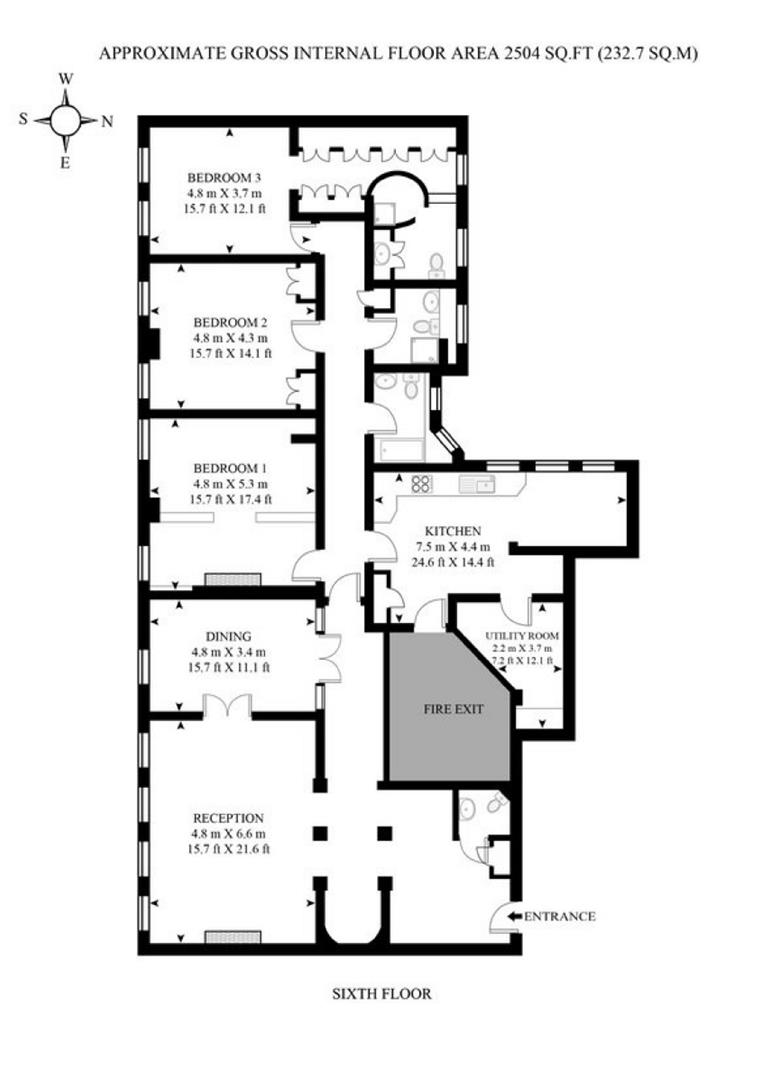
This stylish & spacious (2,504 sq. ft./232 sq. m.) sixth floor apartment has eleven windows facing south directly overlooking Portman Square. Originally constructed as two flats it now comprises; entrance hall, double reception room, dining room, kitchen/breakfast room, master bedroom with ensuite bathroom, two further bedrooms, family bathroom, guest WC, utility room & underground parking. Benefits from twenty four hour uniformed porterage & lifts.
Service Charge £16,000

Featured Sales
View all salesFind out how much your property is worth today by booking a valuation with one of our expert team and see where it takes you. You could be pleasantly surprised.

















